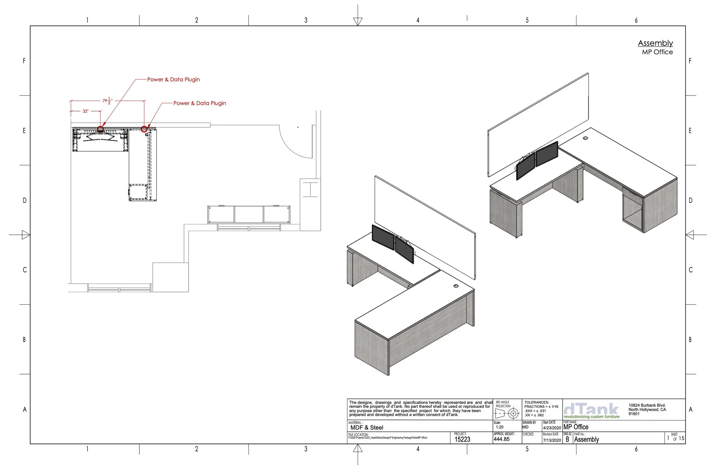
Check In Station

PROJECTS